diagrammafinal (1).jpg

Építészet / Diplomamunka


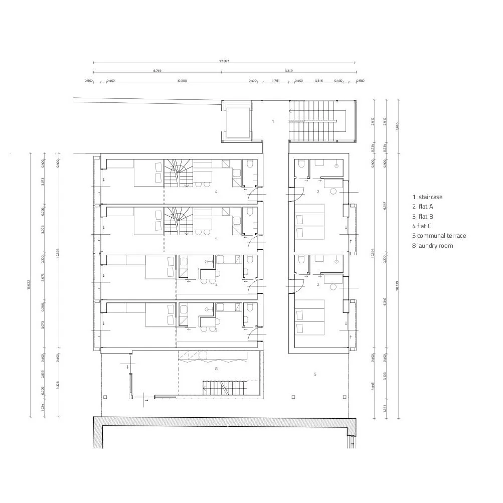
Kisfaludy 5+7

Budapest, Év: 2019.

Méret: 2800 m²

A társadalmi szegregáció, a szocio-kulturális különbségek élesedése és a lakhatási nehézségek megoldatlansága inspirálta a helyszín és a program kiválasztását is. A projekt célja, hogy a közösségi térhasználat, és a funkciók keveredése révén a különböző élethelyzetekben lévő emberek egymásra nyitottan reflektáljanak, megoszthassák tapasztalataikat és életstratégiáikat. Fontos szempont volt a 19. századi bérház udvarok mélyén rejtőző, elhagyatott épületek feltámasztása, ugyanakkor az elértéktelenedett szerkezetek bontásával, és egy új elem beillesztésével a kompozíció feloldódik és új értelmet nyer.



← Vissza




Cam-02.jpg
 
Enscape_2019-05-27-14-11-28.jpg
 
balint_viola_reka_20190520-233825_0.jpg
 
Viola.jpg
 
vezer.jpg
 
alaprajzok.jpg
 
alaprajzok2.jpg
 
alaprajzok3.jpg
 
alaprajzok4.jpg